Bulgari Residences
Luxury beachfront marine complex, features villas and apartments surrounded by gardens
from 241 m²
area of the apartment
from $10,890,000
price of the apartment
Explore the Project Brochure
Inside is the local area, architecture, and infrastructure
PDF 9.47 MB.
File download time is - 4 seconds
Explore the Project Brochure
Inside is the local area, architecture, and infrastructure
← You can scroll through →
By submitting an application, you consent I have read in a whole and agree with the Users Agreement, Personal Data and Cookies Processing Policy, and give specific, substantive, informed, conscious and unambiguous Consent to the processing of my personal data. to the processing of personal data
This site is protected by reCAPTCHA and the Google Privacy Policyand Terms of Service apply.

About the project

Brokers say
Exquisite Italian Design and Luxury Amenities
Designed by the renowned Antonio Citterio Patricia Viel, this development showcases exquisite Italian architecture, offering a range of top-tier facilities, including the Michelin-starred Bvlgari Ristorante and luxurious spa.
Expert 1
Maria
Real estate advisor
Prime Location with Easy Access to Downtown
Located just 20-25 minutes by car from Burj Khalifa and Downtown Dubai, residents enjoy convenient access to the city’s iconic landmarks, shopping centers, and vibrant nightlife.
Expert 2
Sultan
Real estate advisor
Exclusive Bvlgari Yacht Club
The first-ever Bvlgari Yacht Club features a 46-boat private marina, complete with a Yacht Club restaurant, outdoor pool and bar, and the innovative Little Gems Club, perfect for families.
Expert 3
Milana
Real estate advisor

Location of the project

Jumeirah Bay, a private island in the Arabian Gulf, offers an unmatched combination of serenity and proximity to the city. This exclusive locale is home to luxurious residences, private beaches, and lush gardens, providing a peaceful retreat while being just moments away from Dubai’s vibrant urban attractions. Connected by a bridge to the mainland, Jumeirah Bay is an oasis if you seek the highest level of privacy and refined living, making it one of the most prestigious addresses in Dubai.

Finishing

Bulgari Residences blend artistic design and craftsmanship, with wooden terraces, limestone façades reflecting desert dunes, and coral-inspired curves, offering open yet private spaces in harmony with nature.
bedroom
Decoration
Decoration - 0
living room
Decoration
Decoration - 0
kitchen
Decoration
Decoration - 0
balcony
Decoration
Decoration - 0
finishing
Decoration
Decoration - 0 Decoration - 1 Decoration - 2 Decoration - 3

Developer Meraas Holding LLC

Since 2007, Meraas has transformed Dubai’s skyline with innovative developments across the residential, hospitality, and entertainment sectors. With 28 premium projects throughout the city, the company is renowned for redefining contemporary urban living. Meraas also led the ambitious Dubai Harbour project, featuring marvelous waterfront residences.
Erin, Central Park
Nad Al Sheba Gardens
Jumeirah Residences Emirates Towers
Atelis
Bluewaters Bay
Asora Bay
Marsa Al Arab
Solaya Meraas
Central Park
Madinat Jumeirah Living
Verve City Walk
Riwa
NorthLine City Walk
THE ACRES
Elara
Design Quarter
Bluewaters Residences
Jumeirah Asora Bay
See more 14 projects
Sell your apartment in Bulgari Residences
Leave a request, and a project expert will contact you and find a suitable option
Sell an apartment
Yulia Yulia
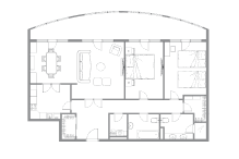
plan
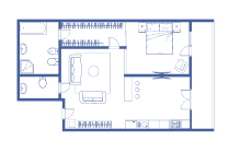
plan2
Yulia, Real estate advisor
Arrange a viewing
Please provide your contact details, and our manager will contact you to clarify a convenient time for your viewing.
Brochure of new developments in Dubai and Abu Dhabi
Download brochure
Brochure of ready to move complexes in Dubai and Abu Dhabi
Download brochure
Brochure of new developments in Dubai and Abu Dhabi
Brochure of ready to move complexes in Dubai and Abu Dhabi
arrow-up
Maria